top of page
에서 제작됨
Menu
Close
회사소개
제품소개
이동식화장실
이동식초소
컨테이너하우스
현장사진
카탈로그
나라장터
회사소개
제품소개
이동식화장실
이동식초소
컨테이너하우스
현장사진
카탈로그
나라장터
070-4012-1234
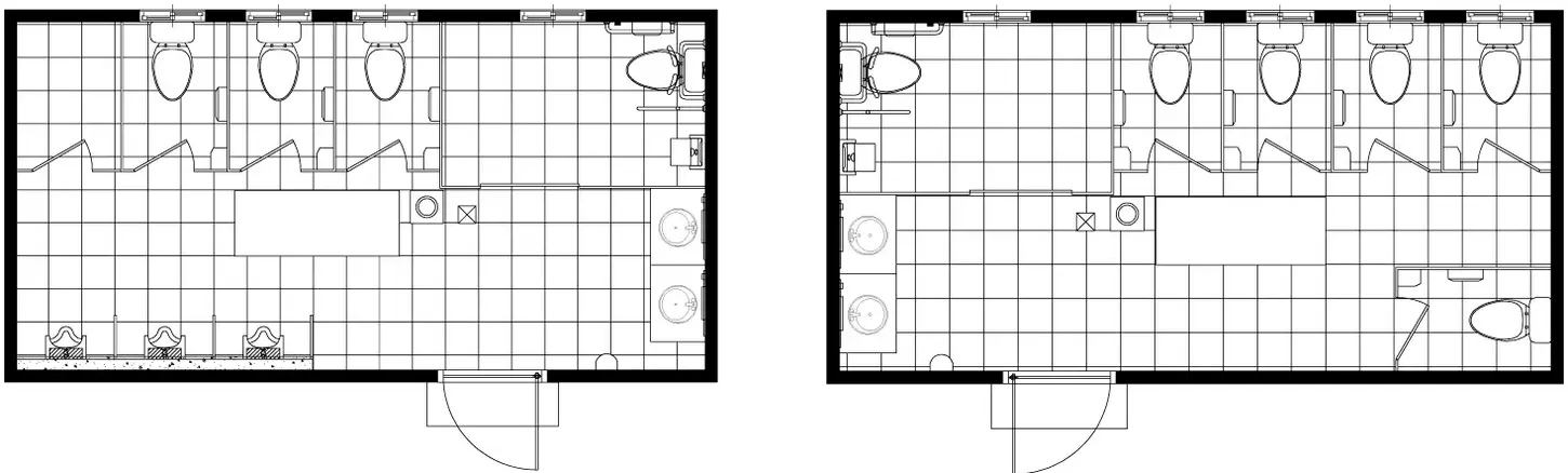
GP-M340
이전
목록
다음
제품규격
6500×3500×3500mm
내부구성
남자 | 세면대2 대변기3 소변기3
여자 | 세면대2 대변기6
기타사항
BF인증용 설계 변경가능
현장상황에 따른 디자인 및 외장재 변경 가능
이동식화장실
회사소개
제품소개
이동식화장실
이동식초소
컨테이너하우스
현장사진
카탈로그
나라장터
bottom of page